Kimberly McEvoy, Interior Designer

Kimberly McEvoy was recommended to us when our Oahu-based designer went missing.  We were about a third of the way through construction on our Maui home and needed help identifying cabinetry, fixtures, flooring, appliances, reflective ceilings, designing soffits, and much more.  We met with Kim and were quickly satisfied should would be a great help.

Designing and building a custom home is a monumental undertaking, compounded by the unique problems that arise on a small island in the middle of the Pacific.  Kim was a long time resident of Maui and and knew here way around the various stores and suppliers.  Kim was even able to find discounted and discontinued items, and material left over from other jobs.

We assume that most designers have good taste, but it often isn't our taste.  Kim has the uncanny ability of quickly understanding our tastes and needs, and making great suggestions that precisely match our desires.  She is artistic, completely understands the building process, and gifted in spacial perception.  Kim is intelligent, pragmatic, professional, energetic, positive, and always in a good mood.

We dealt with at least 50 people while building our home.  Most were very good and hard working, but Kimberly McEvoy stands out head and shoulders above all the others.  We would enthusiastically recommend Kim to anybody needing design work, and are confident they would be lucky to have her.

Eric & Barbara Newman
Maluhia Country Ranches
Maui


Great Room and Kitchen.  Oct. 1, 2009
Great Room and Kitchen. Oct. 1, 2009

Great Room with TV and Fireplace, Oct. 1, 2009
Great Room with TV and Fireplace. Oct. 1, 2009

House Viewed From Street.  Jan. 5, 2010
House Viewed From Street. Jan. 5, 2010



Click Thumbnail for Larger Image
Office Bathroom Painted, January 13, 2010
Office Bathroom Painted
January 13, 2010
Master Bedroom Painted January 17, 2010
Master Bedroom Painted
January 17, 2010
Master Bathroom Painted, January 13, 2010
Master Bathroom Painted
January 17, 2010
Master Bathroom Painted, January 13, 2010
Master Bathroom Painted
January 17, 2010

Sandblasted Front Doors from Outside, Sept. 29, 2009
Front Doors
from Outside
Main Entry and Inlaid Humpback Whales, Sept. 29, 2009
Main Entry and
Inlaid Humpback Whales
Turtle Inlay in Breezeway, Oct. 7, 2009
Turtle Inlay
in Breezeway
Great Room with TV and Fireplace, Sept. 30, 2009
Great Room with
TV and Fireplace

Main Lanai Viewed from Great Room, Sept. 30, 2009
Main Lanai Viewed
from Great Room
Great Room and Kitchen, Oct. 1, 2009
Great Room
and Kitchen
Great Room with TV and Fireplace, Oct. 1, 2009
Great Room with
TV and Fireplace
Terraced Walls Viewed from Below, Oct. 23, 2009
Terraced Walls
Viewed from Below

Guest Room Bathroom Shower, August 19, 2009
Guest Room
Bathroom Shower
Pebble Shower Pan in Office, Sept. 1, 2009
Pebble Shower Pan
in Office
Master Bathroom Floor Tile, Sept. 2, 2009
Master Bathroom
Floor Tile
Solid Monkeypod Desk in Office, Sept. 5, 2009
Solid Monkeypod Desk
in Office

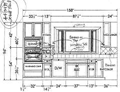
Kim's Kitchen Design, 1 of 3
Kim's Kitchen Design
1 of 3
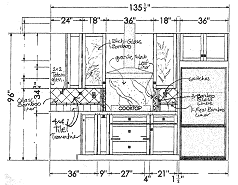
Kim's Kitchen Design, 1 of 3
Kim's Kitchen Design
2 of 3
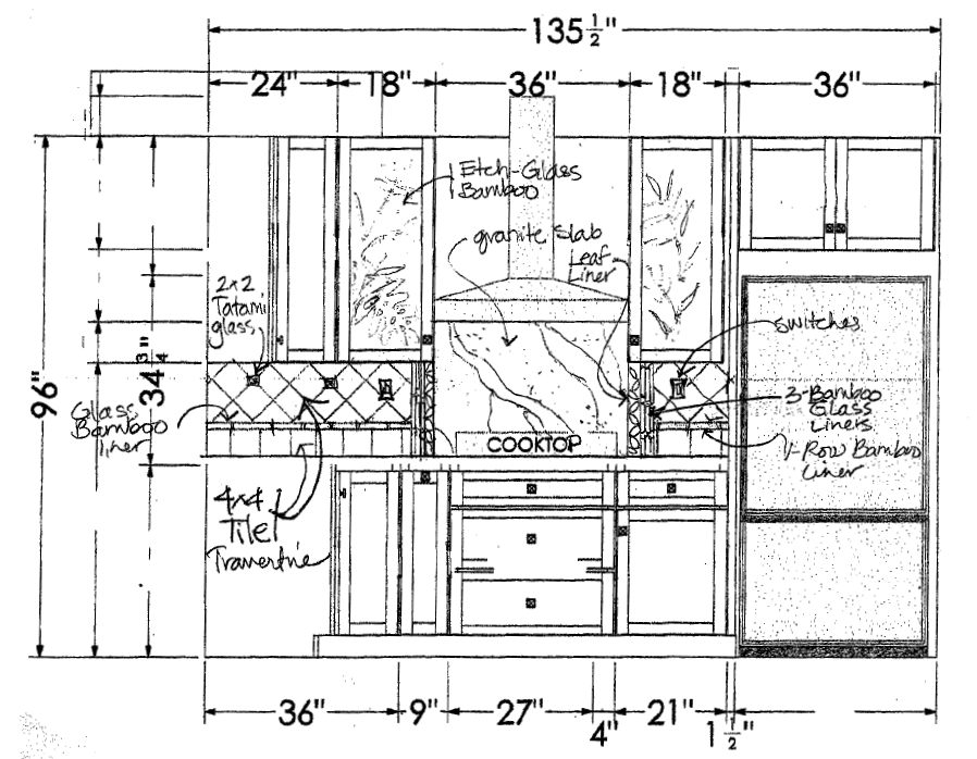
Kim's Kitchen Design, 1 of 3
Kim's Kitchen Design
3 of 3

Kim's Guest Kitchen Design
Kim's Guest Kitchen Design



House Floor Plan
House Floor Plan

Building a Dream House in Maui


Copyright © 2010, Eric Newman *New 2/6/2010